Default sidemenu image
Search

Leave a Message

Thank you for your message. We will be in touch with you shortly.

Explore Our Properties

Property Description

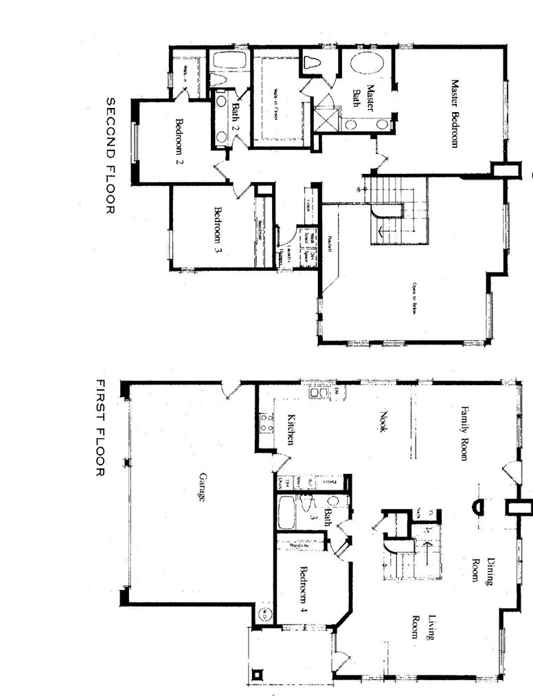
Perfect View Home in Aliso Viejo - This beautifully upgraded single-family residence is situated on a premium lot with stunning canyon views, offering spacious Coastal Living with Four Bedrooms, Three Bathrooms, and a 3-Car Garage. Convenience of a main level bedroom, main level bathroom with walk-in shower, and two separate living areas downstairs makes hosting family a breeze. Enjoy this ideal location walkable to Canyon View park and biking trails of Aliso & Wood Canyons Wilderness Park. Step into the grand entry with soaring two-story ceilings in both the living and dining rooms, creating a dramatic and airy first impression. High quality wood flooring throughout most of the main level creates warmth and sophisticated style. Nicely Remodeled Kitchen features granite countertops, upgraded cabinets with pullout drawers, and an island for additional storage. The kitchen is perfect for entertaining as it opens to a casual dining space and the adjacent family room complete with a gas log fireplace. Main level bedroom features a Murphy bed giving the option for both a guest bedroom and a Home Office. Private backyard is complete with a covered patio with additional shade option via the large retractable canopy. Three more bedrooms are located upstairs, including an oversized primary bedroom with high ceilings and large balcony to enjoy the sunset views. Laundry room is conveniently located upstairs making this floorplan ideal. Plus, all three bathrooms have been tastefully updated, including the luxurious primary bathroom suite with an oversized walk-in shower, heated tile floors and a spacious walk-in closet complete with custom organizers. Additional upgrades include newer dual-pane windows, PEX repipe completed in 2018 with transferable warranty, newer AC, newer washer and dryer, an EV Charging station, two built-in closet safes, plus freshly painted walls. Section 1 clearance paid for by seller too! With the Low-maintenance turf backyard, this home is great for a busy lifestyle while also providing the option for gardening in the expansive side yard featuring mature fruit trees (orange, peach, pear, guava, lemon and avocado). Enjoy the tranquility of canyon views combined with the convenience of nearby parks and trails, top-rated schools Don Juan K-8 and Aliso Niguel HS, as well as the vibrant town center. Rarely do view homes in this Canyon View location become available with so many thoughtful upgrades, so this home is a Dream come true!

Overview

Property Status
Sold
Lot Size
5,644 Sq.Ft.
MLS ID
LG25122888
Property Type
Residential
Year Built
1996

Features & Amenities

Neighborhood
Orange County
Architecture Styles
Traditional
View Description
City Lights, Canyon, Hills, Neighborhood
Stories
2
Garage Spaces
3.0
Water Source
Public
Utilites
Cable Available, Electricity Connected, Natural Gas Connected, Phone Available, Sewer Connected, Water Connected
Pool
None
Roof
Tile
Lot Features
Back Yard, Drip Irrigation/Bubblers, Front Yard, Landscaped, Near Park, Yard
Parking
Concrete, Direct Access, Driveway, Garage
Heat Type
Central, Natural Gas
Air Conditioning
Central Air, Electric
Laundry Room
Gas Dryer Hookup, Laundry Room, Upper Level
Fireplace
Family Room, Gas
Appliances
6 Burner Stove, Dishwasher, Gas Cooktop, Gas Range, Gas Water Heater, Microwave, Refrigerator, Water To Refrigerator, Dryer, Washer
Other Interior Features
Built-in Features, Breakfast Area, Ceiling Fan(s), Crown Molding, Separate/Formal Dining Room, Eat-in Kitchen, Granite Counters, High Ceilings, Quartz Counters, Recessed Lighting, Two Story Ceilings, Bedroom on Main Level, Walk-In Closet(s)
Sewer
Public Sewer
Substructure
Slab
Disability Features
None
HOA Amenities
Bocce Court, Sport Court, Dog Park, Outdoor Cooking Area, Picnic Area, Playground, Pickleball, Tennis Court(s)
Security Features
Carbon Monoxide Detector(s), Smoke Detector(s), Security Lights
Other Exterior Features
Awning(s), Lighting, Rain Gutters
Elementary School
Don Juan Avila
Middle School
Don Juan Avila
High School
Aliso Niguel
School District
Capistrano Unified
Sales Price
$1,975,000
HOA
$125/mo

Downloads

77 Rockrose

Schedule a Tour

I would love to help you see this beautiful home! As a full-service brokerage, we can help you tour. Please submit an offer, and answer questions about the buying process.

Enter a valid email

Thank you

for your interest in 77 Rockrose, Aliso Viejo, CA 92656

back to page
77 Rockrose
Navigate

77 Rockrose
explore in 3d

I'm Interested In

77 Rockrose

or
  • CallPamela Hansen

    License #02094137

    949-297-6340
  • Follow Us On Instagram